About 450 B Irwin St
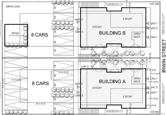
                                                Approved Development Opportunity10 residential+2 Commercial Units. Located in vibrant South Nanaimo,450 & 460 Irwin Street offer a rare and ready-to-go development opportunity.Centrally positioned within walking distance to the scenic seawall and convenient shopping, this property combines an excellent location with an already-approved vision for the future.The project has a Development Permit approved by the City of Nanaimo for two multi-family buildings, each thoughtfully designed with five residential units + one CRU. Building A and Building B are mirror images, and the floor plans are up to 1000 sq/ft.The innovative design ensures appropriate parking for residents and supports much-needed "missing middle" housing — a critical type of housing that bridges the gap between single-family homes and larger apartment complexes.This is a prime opportunity to step into a project that aligns with Nanaimo’s growing demand for diverse, attainable housing.Measurements approximate to be verified
                                                    Commercial Sale home for sale in Nanaimo, BC at 450 B Irwin St.
                                             
                
                                                
                
                
                                                    
                                    
                                    
                                                                            Amenities                                 of 450 B Irwin St                                                            
                            
                                                                                                                                                                                                                                                                                                                                                                                                                                                                                                                                                                                                                                
                                        | View | 
                                        
                                                                                            Mountain(s), Ocean
                                                                                     | 
                                    
                                                                                                                                
                                        | Is Waterfront | 
                                        
                                                                                            No
                                                                                     | 
                                    
                                                                                                                                                                                            
                                        | Has Pool | 
                                        
                                                                                            No
                                                                                     | 
                                    
                                                                                                                                                
                            
                                            
                                    
                                                                            Interior                                 of 450 B Irwin St                                                            
                            
                                            
                                    
                                    
                                    
                
                                
                
                
                
                                
                    
                        
Map To 450 B Irwin St, Nanaimo